28 Newton Court,

Weymouth, MA

$525,000

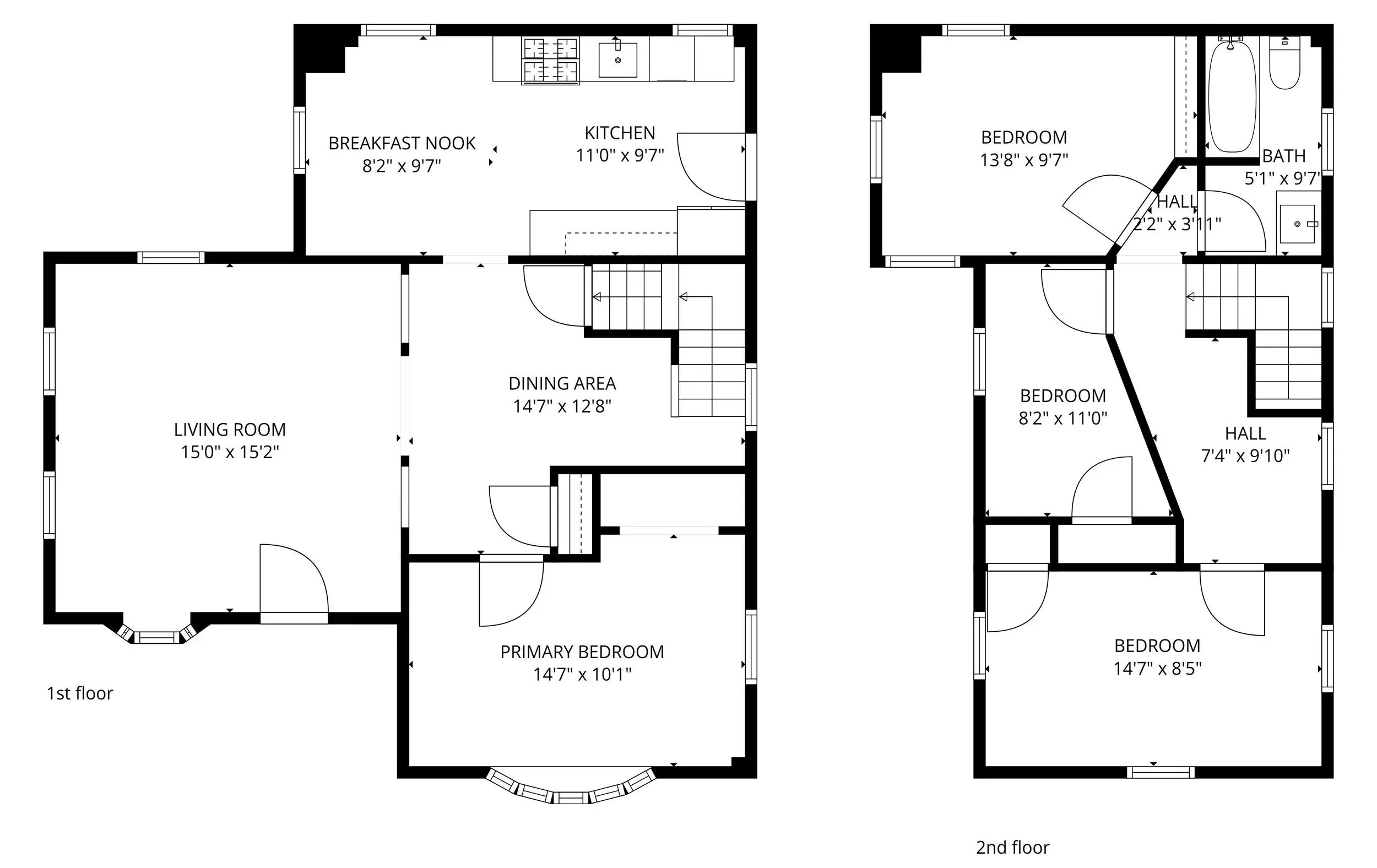
Affordable single-family living in North Weymouth! Introducing 28 Newton Court, a newly remodeled & move-in ready home combining comfort & convenience on a quiet, dead-end street less than one mile from Wessagusset Beach! The main level offers a large living room w/ a bay window, a dining area, an updated kitchen w/ live edge countertops, S/S appliances, gas cooking, & breakfast nook, along w/ a 1st floor bedroom. The second level offers 2 bedrooms, an office nook, a bonus room/optional 4th bedroom, & an updated full bathroom w/ stylish finishes. Other highlights include hardwood flooring throughout, tons of natural light, driveway parking w/ space for up to 6 vehicles, low-maintenance vinyl siding, & a fenced-in yard. Conveniently located off Route 3A w/ quick access to the city & within minutes to the beach, Great Hill Park, Webb Park, shops, dining, schools, marinas, & more. Enjoy coastal living just in time for the summer.


Property Details

3 Bedrooms

1 Bathrooms

1,380 SF

 


Showing Information

Please join us for our Open House:


Saturday, February 14th

1:30 PM to 3:00 PM

Saturday, February 15th

1:30 PM to 3:00 PM


Listed by Dan Gorfinkle and Mario DeCristofaro. For more information, call/text Dan 617.820.8085 or Mario 781.686.0969.