90 Kilsyth Road, Unit 31

Brookline, MA

$985,000

Experience the perfect blend of modern luxury and urban convenience in this Cleveland Circle gem. Positioned on the third floor of a professionally managed elevator building, this home offers a seamless "turn-key" lifestyle where every detail has been meticulously updated. The inviting foyer leads to a sun-drenched, expansive living area and a highly functional cozy kitchen featuring newer stone countertops, custom cabinetry, stainless steel dishwasher, range, and refrigerator appliances. The designer bathroom is a crisp, white sanctuary with custom tile work and contemporary fixtures. Key amenities include stunning common roof deck with panoramic views perfect for relaxation. Practical on-site laundry and a private storage unit and great location minutes from B, C, and D Green Line trolleys. Rt. 9, I-128, and the Mass Pike!


Property Details

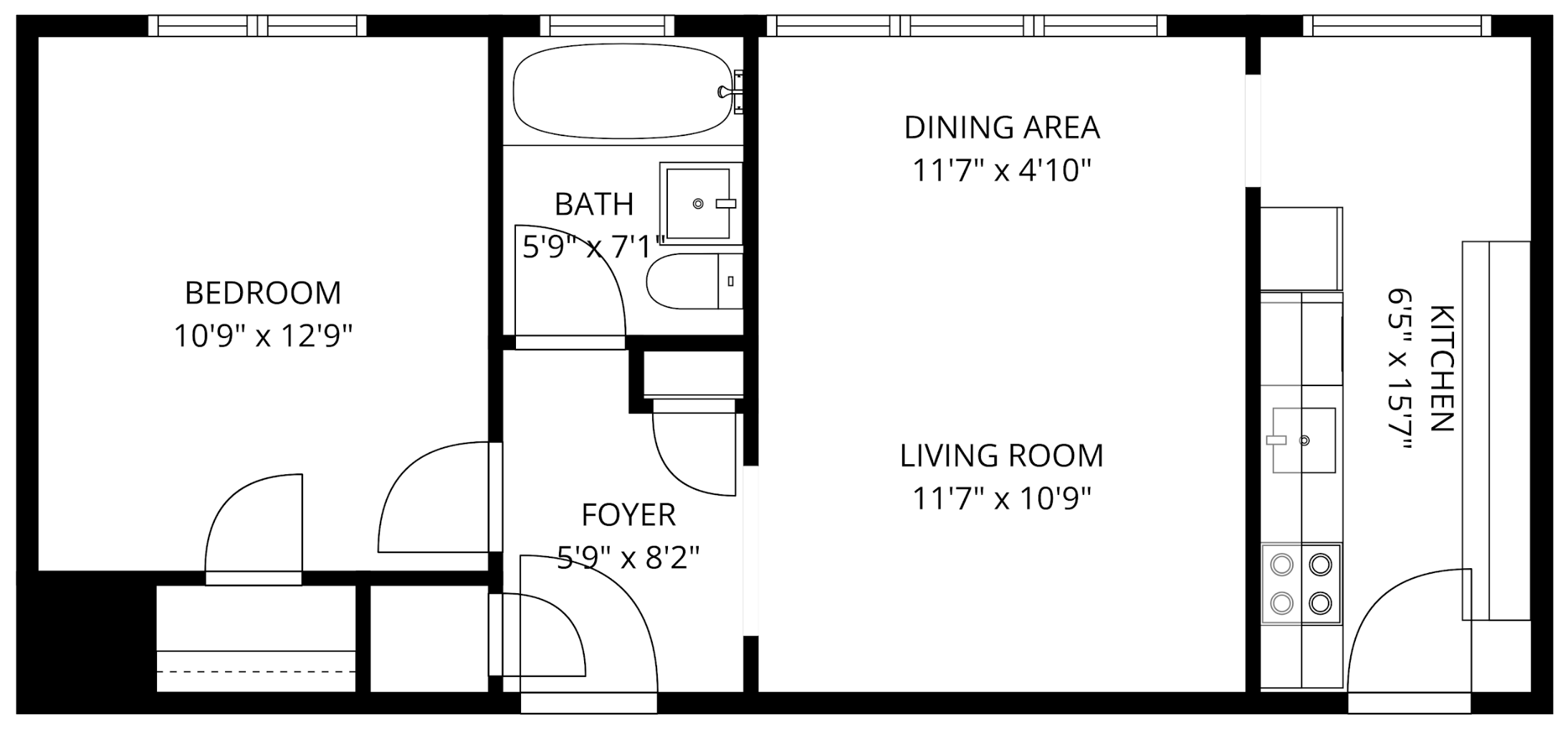
1 Bedroom

1 Bathroom

580 SF

 


Showing Information

Please join us for our Open House:


Saturday, April 18th

1:00 PM to 2:30 PM

Sunday, April 19th

1:00 PM to 2:30 PM


Listed by Dan Gorfinkle and Mario DeCristofaro. For more information, call/text Dan 617.820.8085 or Mario 781.686.0969.


Additional Information

  • 3 Rooms, 1 Bedrooms, 1 Bathrooms

  • Living Area: 580 Interior Square Feet

  • Condo Fee: $424

  • Year Built/Converted: 1950

Interior

Building Common Areas: The lobby showcases deep crown molding, plaster archways, and a grand staircase with original white marble treads and a contrasting black-painted wrought iron banister with a solid wood handrail. A classic wooden bench provides a focal point against the textured white walls.

  • Mail & Package Room: Located off the main lobby for security, this area features the same terracotta tiling and holds a large bank of 36 modern silver-finished USPS-approved mailboxes with integrated parcel lockers.

  • Common Laundry Room: A clean, functional space located in the lower level. It features commercial-grade Speed Queen front-loading washers and dryers (approximately 3–5 years old), known for their durability. The room includes a dedicated folding table, utility sink, and a large window for natural ventilation.

  • Private Storage: The lower level also houses an extensive row of private, floor-to-ceiling storage cages. These units are constructed with sturdy timber framing and heavy-duty wire mesh, secured with individual tenant padlocks.

Unit Foyer: The entry is defined by a beautiful, deep plaster archway that leads into the living area, and a rare built-in telephone nook (a charming nod to the building’s history) featuring a scalloped decorative header and a vented lower cabinet. The space features original narrow-plank hardwood floors finished in a rich, dark oak stain that contrasts elegantly with the white woodwork and light gray walls.

Kitchen: Efficiency meets modern style in this thoughtfully renovated galley kitchen. The space feels bright and airy thanks to a crisp, high-contrast aesthetic and smart organizational features.

  • Flooring & Lighting: Rich, dark-stained hardwood floors run the length of the room, providing a warm foundation for the bright cabinetry.

  • Cabinetry & Countertops: The kitchen is outfitted with an abundance of shaker-style white cabinetry featuring modern brushed-nickel bar pulls. The "U-shaped" layout provides extensive storage across both upper and lower units. Pristine white quartz countertops offer plenty of prep space, including a long secondary counter on the opposite wall that serves as a perfect coffee station or breakfast bar.

  • Backsplash & Fixtures: A classic white subway tile backsplash with light gray grouting wraps around the entire cooking and prep area, offering a timeless and easy-to-clean surface. A deep, under-mount stainless steel sink is paired with a high-arc, pull-down swivel faucet in a matching brushed-nickel finish.

  • Appliances: The kitchen features a full suite of modern stainless steel appliances:

    • Refrigerator: A large, stainless steel refrigerator

    • Range: A full-sized electric glass-top range and oven.

    • Microwave: A built-in, over-the-range microwave that saves valuable counter space.

    • Dishwasher: A quiet, integrated stainless steel dishwasher located conveniently next to the sink.

Living Room: The room’s most striking feature is the ornate tin-style coffered ceiling. Finished in a bright matte white, the intricate geometric patterns add a layer of historic sophistication and visual height to the space. A massive bank of three oversized double-hung windows serves as the room’s focal point. The generous layout accommodates a full-sized sofa, armchair, and media console with room to spare. The space is anchored by a large area rug, and the high ceilings (approx. 9 feet) make the footprint feel even more substantial. The far end of the room is versatile enough to house both a circular dining table for four and a dedicated home office nook tucked into the corner by the windows.

Bedroom & Bathroom: The generous floor plan easily accommodates a queen-sized bed, side tables, and a full-sized dresser. The bathroom features a full-sized soaking tub and shower combination. The shower walls are wrapped in oversized, horizontal white subway tiles with a built-in soap niche. The space is enclosed by a modern sliding frosted-glass door with chrome hardware, offering both privacy and a streamlined look. The floor is finished in a timeless white penny-tile with light gray grout, a classic Boston choice that feels both vintage and clean. A modern white shaker-style vanity provides essential storage, topped with a crisp white ceramic sink and a polished chrome lever-style faucet. Above the vanity is a sleek, recessed mirrored medicine cabinet for additional organization.

Systems

  • Heating & Cooling: Single-zone central heating & cooling. Age of systems unknown.

  • Hot Water:

  • Electrical:

  • Laundry: Shared in building.

  • Utilities: Electric is with Eversource

Exterior & Parking

  • Exterior: The building exterior is brick.

  • Roof: Rubber membrane

  • Windows: The unit has double paned windows. Age unknown.

  • Parking: On-street parking with permit.

Association & Financial Information

  • 30-unit association.

  • Condo Fee: $424 The fee covers master insurance, water, heat, sewer, elevator maintenance, snow removal, building maintenance, and reserves

  • Professionally Managed Building

  • Condo Account: What do you mean?

  • Pets: Allowed

  • Rentals: Allowed

  • Smoking: No smoking inside units and common areas.

  • Tax Information: $944.78 (FY26).